建物門牌: 桃園市龜山區文化一路大亮泊第A棟2號17樓 房屋屋齡:  0年 房屋類型: 大樓 所在樓層: 本案在17樓/共26樓 建物權狀:36.44坪 主建物 :15.98坪 附屬建物:1.32坪 共同使用:8.87坪 車位  :10.27坪 建物權狀是否包含車位坪數:Y 土地權狀: 3.39坪 格局  : 3房 2廳 1衛 開價  : 1250萬元(40萬/P) 停車位 : 有/坡道平面 交通  : 文化一路 本物件附近地址實價登錄 : 本物件兩年內上一筆實價登錄: 無 照片連結: https://www.sinyi.com.tw/buy/house/7918SW/483212?openExternalBrowser=1 其他介紹: 大亮泊A棟為住宅,非事務所,距離捷運約700公尺,樓層為17樓 、步行約10分鐘可至捷運A7站,非那些文桃路以北步行超過20分鐘的社區 屋主因為工作變動所以誠意出售一坪開得比實價登錄還低 只開一坪40萬 算超級A案,三房加上車位只開1250萬算A7這邊稀有開價那麼有誠意的,而且還可以談 中心商業區未來性佳 大樓管制採用101發卡機 低總價、低單價,室內配備好 全套BOSCH高檔廚具組 TOTO&Hansgrohe衛浴設備 日本不二鋁窗、西門子訪客系統 屋主誠意要賣開價只開40萬/P.有意願出價就談 想買來投資,可以考慮入手。 聯絡資訊:手機:0928257674 /Line:014@aceqj 銷售來源 :房屋仲介 信義房屋-林口站前店(信義房屋股份有限公司) 公司地址 :新北市林口區文化三路一段169號 公司電話 :02-26086666 經紀人姓名:汪耀崇(90)北縣字第000214號 營業員姓名: 施定岳(113)登字465544號 收費方式 :賣方不得超過4%、買方不得超過1% -- ※ 發信站: 批踢踢實業坊(ptt-web.org.tw), 來自: 61.229.64.216 (臺灣) ※ 文章網址: https://ptt-web.org.tw/home-sale/M.1751166566.A.EC8
kutkin: 大逃殺 06/29 11:10
seratana: 全新尚未完工A7預售只開一坪40萬算很優惠的破盤價了 06/29 11:11
jessicaabc98: 三房一衛就是垃圾,當傳家寶吧 06/29 11:24
jessicaabc98: a7是要出貨出多久 06/29 11:25
seratana: 全新預售捷運步行10分鐘開價40有捷運的地方應該沒得選了 06/29 11:26
badlip: 有人包養過洋鬼子嗎 06/29 11:26
SportLeo: 成交應該3開頭吧 06/29 11:29
seratana: 有喜歡就出出看開價才40耶 比合宜宅跟A7.5還便宜 06/29 11:30
toto123: 為啊 為什麼三房一個衛浴啊?好奇怪 06/29 11:30
seratana: 而且是住宅 不是事務所 他旁邊的金捷市都有成交到50了 06/29 11:31
bear31223: 一坪40萬但是車位400萬… 06/29 11:38
piggyoil: 有錢人為啥都想包養 06/29 11:38
seratana: 樓上您算錯了喔 車位是200萬 不是400萬 06/29 11:39
cutbear123: 套爛大逃殺 06/29 11:45
blackfire: 三房一衛是什麼奇葩設計…. 06/29 11:46
atliberty: 15坪還能3房,真棒 06/29 11:49
jessicaabc98: 三房沒兩衛的大都兩房一室啦 06/29 11:52
TwixBar: 有人被洋鬼子包養過嗎 06/29 11:52
tctv2002: 40 很香欸 06/29 11:52
tmc94: 室內15還能三房 06/29 11:54
jessicaabc98: 說香的快買 06/29 11:55
clecer: 盤子價,平轉再來談 06/29 11:55
seratana: 樓上可以出出看喔 06/29 11:56
boggicer: 到底要多有錢才會想包養 06/29 11:56
mcgrady12336: CC 06/29 11:56
fairy321: 賣太低了 這樣其他魯套怎麼跑 06/29 11:56
seratana: A7現在預售都開價55萬以上了這一間預售才開40萬 06/29 11:56
seratana: 依照A7在home版討論如此熱烈地跟人氣那麼旺 06/29 11:57
seratana: 開40萬的預售價出售真的是人道走廊 06/29 11:57
Chiason: 包養SD = aSugarDating 06/29 11:57
kutkin: 要補錢的話 06/29 11:59
seratana: 可以去逛逛現在A7的預售場子 價格都很高5字頭 06/29 12:00
zebirlin: 大8免 大成O 大量泊 大逃殺 XDDD 06/29 12:02
zebirlin: 室內15明明就算2房一衛 不是自己灌水3房就算3房的 06/29 12:03
a890036: 室內不到16兩房都嫌小了劃成三房是啥小 06/29 12:12
Markell: 閨蜜上包養網還推薦我... 06/29 12:12
hcwei0126: 行情價 06/29 12:16
jian0202: A7三字頭人道走廊已封 目前朝向2字頭 06/29 12:17
AJStyles: 其實算蠻便宜的 只是三房一衛太小了 06/29 12:18
Ironcc: 如果2房2衛應該比較好賣 06/29 12:21
zzyzx: 絕版四字頭變絕版三字頭 慘啊 06/29 12:23
fuoya: 包養? 06/29 12:23
askey: 這案有幾間在賣啊看到一堆 06/29 12:24
sernidle: 15坪不能貸款吧 06/29 12:25
CK19: 轉約現金要給不少吧 06/29 12:28
seratana: 可以貸款喔 權狀坪數扣車26.17坪含車位36.44坪 06/29 12:28
seratana: 轉約現金不用給很多 屋主賣低於實登價 06/29 12:28
Apasiri: 台全最的包養SD上線啦! 06/29 12:28
seratana: 目前在賣的大亮泊單價應該我們這間最低 06/29 12:29
seratana: 只開40萬一坪 非事務所 是住宅 06/29 12:29
allcliche: 三房客變成兩房空間就ok,雙北要去 06/29 12:35
allcliche: 哪裡找單價40又走路到捷運的新房? 06/29 12:35
Byzantin: 超高大樓高樓層,划算便宜 06/29 12:39
litidi: 現在包養網都這麼直接嗎 06/29 12:39
aa2191290616: 室內15... 06/29 12:39
sernidle: 室內15隔三房一衛 真的太擠ㄈ 06/29 12:44
Mithra: 兩房平車1250不是問題 06/29 12:47
Mithra: 硬隔成三房也太慘了 06/29 12:47
drimp: 空空這間都買不起也太慘了吧 窮人真的租房就好不要再幻想買 06/29 12:51
Merzario: 歐美包養真的很平常嗎? 06/29 12:51
Lions2020: 這間可以唷 06/29 12:51
drimp: 房了 不要為難自己 06/29 12:51
jessicaabc98: 說便宜的快接 06/29 12:52
jessicaabc98: 人道走廏?走到地獄嗎 06/29 12:53
Lions2020: 等等,這間是屋主住高雄的李先生嗎? (這我捧油耶) 06/29 12:53
Muzaffer: 男友上包養網 該放生嗎 06/29 12:53
lovemaygen: 超便宜推,會秒 06/29 12:54
hwei9582905: 這坪數就是兩房,別想騙 06/29 12:56
a520978926: 什麼時候到了跳樓價 再通知我一下 06/29 12:57
azaz12345: 加價拜託 06/29 12:57
jessicaabc98: 一坪開七十,有傻蛋會覺的五十便宜就買了,你這仲 06/29 12:58
MIJice: 是這個包養平台 06/29 12:58
jessicaabc98: 介太遜了 06/29 12:58
jack0216: 還可以欸…走路可以到給推 只是欸七空氣不知道好不好就 06/29 13:00
jack0216: 是了 06/29 13:00
childeviler2: 住宅當初一坪就要34萬多喔?如果真賣到35~36,那真 06/29 13:01
childeviler2: 的是回到2021的價格了 06/29 13:01
SpyTime: 交男友跟包養有什麼差別 06/29 13:01
Ericchiu99: 成交再降100可以了 讓利讓利 06/29 13:06
CCOOGG: 說好賣不掉加價賣 06/29 13:07
TAYLOR888: 16坪三房是怎麼隔的…好猛 06/29 13:08
horseorange: 這就多一間倉庫的兩房 一衛還好吧 06/29 13:08
tenkaakido: 蒙R坡王色色發抖 06/29 13:10
Toth: 包養網到底在紅什麼? 06/29 13:10
Lions2020: 這跟幾房沒關係吧,它就是間開價40萬的A案大亮泊。 06/29 13:13
CCOOGG: 桃園回測20-25萬 06/29 13:14
oncloudy: 急了 06/29 13:14
Lions2020: 回測20~25太誇張了啦,3x萬已經很屌了 06/29 13:15
twin2: 奇怪,只漲不跌的房版大佬怎麼沒出現掃貨? 06/29 13:15
Asterix: 有人被包養 06/29 13:15
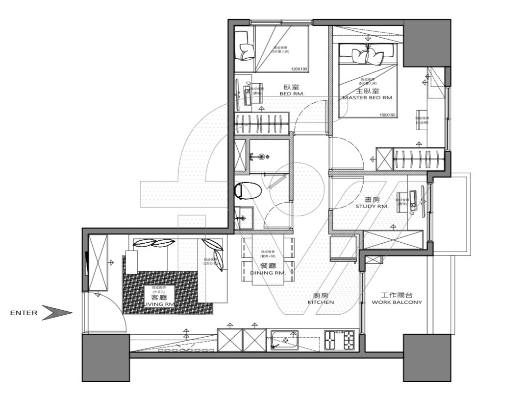
ws643908: 15坪3房,然後1衛,別鬧了,這格局超級有問題 06/29 13:16
gprs910: 旁邊的看到要準備跑路了 06/29 13:19
x156w423: 格局就2+1 06/29 13:19
x156w423: 一直哭哭格局的 加錢去買正三房啊 06/29 13:19
x156w423: 反正依台灣人尿性 06/29 13:19
AdamShi: 求包養...管飽就好XD 06/29 13:19
x156w423: 便宜的時候不敢買 漲的時候拼命追 06/29 13:19
x156w423: 習慣就好xD 06/29 13:19
gk1329: 不急 06/29 13:20
CCOOGG: 3x萬覺得ok敢買的快收貨喔 06/29 13:20
x156w423: 另外大亮應該2026交屋 06/29 13:21
lezabo: 阿姨!我不想努力了(求包養) 06/29 13:21
x156w423: 現金要預留好再吃 06/29 13:21
ninan912: 轉約要付多少現金 06/29 13:22
Wallen: 明年大量交屋你再看看其他三房的有多少坪 06/29 13:23
Wallen: 大多數15坪的只會說是2+1吧 06/29 13:24
tctv2002: 去年前年一堆排隊秒殺建案 大概都兩年後才會陸續完工 06/29 13:25
silberger: 有沒有富二代要包養 06/29 13:25
al311166: 16坪只能算一房一衛喔 06/29 13:33
oncloudy: 一層10戶…也太複雜太亂了吧 06/29 13:34
oncloudy: https://i.imgur.com/uu9eFpy.png 06/29 13:34
babyMclaren: 15坪最好叫三房啦 06/29 13:34
CCOOGG: 房價多薄弱看崩盤初期就知道 交屋潮都還沒來 06/29 13:41
xayile: 身邊有朋友被包養 06/29 13:41
CCOOGG: 就一堆人緊急下車逃命了 06/29 13:42
seratana: 捷運站步行約10分鐘全新住宅開價一坪40萬,應該沒有比他 06/29 13:45
seratana: 還便宜的捷運附近的全新住宅了吧 連A10都賣到45了 更不 06/29 13:45
seratana: 用說林口了 靠近A9站的新房子都是一坪70了 06/29 13:45
DDDDRR: 那麼好應該秒了吧 06/29 13:47
cazo: 亞洲最大包養平台上線了 06/29 13:47
jessicaabc98: 說人哭格局,先叫這房仲打好不是正三房r 06/29 13:50
seratana: 建商當初規劃的就是三房 到時候要不要打掉隔間變成兩房 06/29 13:51
seratana: 都可以自由設計規劃 06/29 13:51
antis: A7加速殞落 06/29 13:51
seratana: 不然開價才一坪40萬全新的捷運10分鐘住宅 真的雙北地區 06/29 13:52
izilo: 包養SD = SugarDaddy? 06/29 13:52
seratana: 跟桃園找不到了吧 06/29 13:52
seratana: 算是首購跟小資族救星 06/29 13:52
CCOOGG: 這個是不錯 價錢現在看也似乎可以 不過後面應該還要崩20-3 06/29 13:54
CCOOGG: 0% 06/29 13:54
CCOOGG: 誰先下車誰先贏 06/29 13:54
SEDAP: 這個包養網正妹好多 是真的嗎 06/29 13:54
zebirlin: 潮水退了才知道有幾個是要自住的 XDDD 06/29 13:54
jessicaabc98: A7 小檜7 青龍埔,看來A7輸了 06/29 13:55
sernidle: 兩年後龐大交屋潮出來 假三房可能連27都沒有 06/29 13:58
jeffsu: A7的7是總價700萬的7 快逃啊 06/29 13:58
jessicaabc98: 重申一粢三房沒兩衛就是垃圾 06/29 14:08
TUZom: 真的有這麼多人在找包養 06/29 14:08
bob14: 比前面新豐還便宜 桃園真的是房價凹區 06/29 14:08
a87564231: 太便宜了~不加價怎麼對得起房價^_^ 06/29 14:08
seratana: 鄉民名言:房價只漲不跌 現在屋主讓利請好好把握 06/29 14:13
JustWinslow: 還可以客變嗎 幫我改成兩房 然後900萬可以出來談 06/29 14:14
JustWinslow: 你跟屋主說 現在不賣 一年後可能剩下600 06/29 14:15
Jiulon: 有人可以分析一下包養平台的差異嗎 06/29 14:15
repast: 入土第一排哈哈哈 06/29 14:16
repast: 15坪 三房 當傳家寶囉 06/29 14:16
MTBF: 看版上一些投資客在罵金龍就覺得好笑 如果不是龍哥把預售關 06/29 14:17
MTBF: 廁所禁轉 現在到未來兩年多殺多會崩得更快 06/29 14:17
lescholar: 打掉改2房比較好 牆壁根本浪費空間 06/29 14:18
laetuon: 那個包養網人最多XD 06/29 14:18
LADKUO56: 15坪三房 那真的很擠喔 不過這棟很久以前就賣完了吧 06/29 14:18
ycjcsie: 這麼優質的物件一定要推薦給別人買 06/29 14:18
morrishh: 15坪比我一個房間還小…… 06/29 14:27
john5601: 便宜樓下買 06/29 14:30
thinksilver: 看實登算平轉吧 也沒有到大逃殺 06/29 14:31
slot365: 我妹上包養網被我發現= = 06/29 14:31
instratos: 走路10分鐘超久XD 06/29 14:32
Wallen: 開價比實價登錄還低 這句話不知道會出現多久 不過 06/29 14:33
Wallen: 暗廳真的無法接受 06/29 14:33
glenex: 說便宜的趕快買喔 06/29 14:33
ahlolha: 多1房基本上就是少1衛+非封閉式廚房省下的空間 06/29 14:53
colortea: 隔壁桌的人竟然在討論包養... 06/29 14:53
kwinner: 車位10坪怎麼回事 06/29 14:57
Brioni: 1250萬買16坪空間…年輕人真辛苦 06/29 15:04
duriel3313: 單身16坪算還行吧,要成家兩人分1人600多是有多難?? 06/29 15:12
gm3252: 真的香 買了很穩 06/29 15:22
CCOOGG: 1人600多很簡單?? 去借借看還還看 看還多久.... 06/29 15:25
glenber: 樓上是不是被包養 06/29 15:25
hung0925: 給麻雀住的 06/29 15:27
jessicaabc98: 都買哪麼遠了,還住的哪麼不舒服,真的是垃圾 06/29 15:30
kerry1461: 看樣子,a7還是很搶手,這篇超多人回~ 06/29 15:30
jessicaabc98: 你可以不買,但是一定要叫你朋友賣 06/29 15:30
f860506: 再撐一下 下半年開價就回3字頭了 06/29 15:37
Kimbel: 樓下被包養 06/29 15:37
ds1999h: 格局不OK 06/29 15:42
kimula01: 桃園八德都要4x了 06/29 16:05
tteeccddyy: 三房配一衛是什麼垃圾格局 06/29 16:06
SportLeo: 說實話這個跟我二房格局幾乎一樣。那個一小是應隔的吧 06/29 16:22
panzerbug: 居住正義來了 06/29 16:27
tale1890: 現包養都上檯面了嗎 06/29 16:27
panzerbug: 對a7發展好事,價格下去人進來 06/29 16:27
qwert65732: 15坪 三房 1250 :) 06/29 16:29
a951l753vin: 一小拿去當儲藏室啊 06/29 16:32
a951l753vin: 打掉隔間是真的也沒很貴 +垃圾清運十萬內搞定 06/29 16:33
wheado: 恭喜獲利了結 06/29 16:39
waterway: 在包養網遇到朋友= = 06/29 16:39
plumaqe: 我書讀的少,不是應該扣掉車位的坪數和價錢後,才去算單 06/29 16:39
plumaqe: 坪價格嗎? 06/29 16:39
pk9980192: A7入土為安 哈哈哈哈 06/29 16:42
childeviler2: 會不會明天就寫已售出? 06/29 16:43
start0917: 你這樣南高怎麼賣 06/29 16:48
mark1888: 問卦:有包養SD的卦嗎 06/29 16:48
bogy26: 幹 改名叫A4好了 06/29 16:48
marsonele: 這個一個大套房吧 隔到3房真的很小 06/29 16:54
CCOOGG: 搞成大套房它不就原形畢露 大套房要賣你1250xdxd 06/29 16:57
zong780405: 15坪 假3房 06/29 17:03
zong780405: 頂多是2+1 06/29 17:05
Quaranta: 隔壁桌好像是包養SD在見面XD 06/29 17:05
CCOOGG: 買這些都是死路一條 20坪隔成2房都不太夠了 15坪3房? 06/29 17:07
CCOOGG: 怎不乾脆15坪隔成4房2廳2衛 XD 06/29 17:07
shuichia: A7護衛隊怎麼還不趕快買起來護盤,不是說便宜買了之後 06/29 17:09
shuichia: 還可以轉貸嗎? 06/29 17:09
jamison04: 這間的格局、地點真的爛到全台知名,經典 06/29 17:11
schlemm: aSugarDating = 包養SD? 06/29 17:11
jamison04: 絕對是A7的指標,爛的那種指標 06/29 17:11
econaccount: A7房價要開始跌了喔 這樣林口A9的護城河就破一個洞了 06/29 17:13
jamison04: 還人道走廊笑死,騙白癡就騙白痴講的自己多有多懂,就 06/29 17:14
jamison04: 是騙無知跟白癡接手垃圾物件 06/29 17:14
econaccount: 室內15坪隔兩房都很小了 三房應該只有主臥能正常使用 06/29 17:15
Wirol: 未看先猜這包養網 06/29 17:15
econaccount: 其他兩間可能連當儲藏室都嫌小XDD 06/29 17:15
jamison04: 真的感謝金龍,把這些妖魔鬼怪殺出來,一個一個來秀下 06/29 17:16
jamison04: 限 06/29 17:16
CCOOGG: 這間多多不曉得多少入手的 如果超過800大概都要虧了 06/29 17:17
CCOOGG: 多多如果是用新清安接盤的 1000萬年利息約22萬上下 很硬喔 06/29 17:19
marecht: 有人知道包養SD是什麼嗎 06/29 17:19
MinJun5566: 隔成三房又只有一衛 06/29 17:35
jack82379055: 人道走廊 06/29 17:48
jie5317: 新房40萬上下要通勤台北還有什麼更好選擇嗎? 06/29 17:52
seratana: 大家嫌棄的16坪其實可以隔成兩房目前A7很多兩房都是16坪 06/29 17:55
seratana: 但是思考一下捷運走的到的全新房子又是超高樓層 06/29 17:56
riokio: 一定又是這包養網 06/29 17:56
seratana: 然後通勤到台北車站約25分鐘 一坪40萬開價要去哪裡找? 06/29 17:56
econaccount: 用台北市的角度看 當然就勉勉強強 但它是桃園門牌... 06/29 17:58
econaccount: 不過再怎麼樣的房子都會有人買 一切都是價格問題 06/29 18:00
econaccount: 祝原PO順利找到好買方囉 06/29 18:00
CCOOGG: 現在誰還擠捷運 要通勤也只有高鐵勉強 06/29 18:02
wiimas: 包養平台不意外 06/29 18:02
CCOOGG: 而且機捷又貴又慢又擠 算捷運裡面最爛的一種 06/29 18:03
seratana: 機捷現在有tpass 所以坐的人很多 很划算 06/29 18:03
seratana: 不然樓下請問通勤台北25分鐘到北車新房40萬一坪還有哪裡 06/29 18:04
childeviler2: 桃園市民卡搭機捷也有8折 06/29 18:04
seratana: 三重林口泰山丹鳳塭仔俊A10A8A9A7好像新房有捷運都是超 06/29 18:05
Branlli: 覺得包養網EY嗎 06/29 18:05
seratana: 超過40萬/坪吧 我認為這個單價跟總價真的是首購入門友善 06/29 18:05
WTS2accuracy: 校正回歸囉 06/29 18:05
CCOOGG: 買1250的奢侈品 用tpass通勤省錢 06/29 18:05
seratana: tpass1200北捷機捷都吃到飽阿 根本不貴 我覺得超划算 06/29 18:06
CCOOGG: 多多社畜悲歌莫過於此 QQ 06/29 18:06
Cinedt: 包養網站葉配啦 06/29 18:06
WTS2accuracy: 蒙R波王快來買 2年前的價格欸 賺爛了賺爛了 06/29 18:07
childeviler2: 前幾天小學考試考完,A7的地方媽媽說,現在A7越來越 06/29 18:10
childeviler2: 多人,越來越擠了,我今天去A7測試機器發現,機車 06/29 18:10
childeviler2: 停車位免費的都停滿了... 06/29 18:10
CCOOGG: 當戰士需要用tpass或考慮折扣的時候 06/29 18:17
Drither: 記者收了包養網多少啦 06/29 18:17
CCOOGG: 說真的 還是租房吧... 06/29 18:17
CCOOGG: 買房的負擔絕對超出多多想像 06/29 18:18
DDDDRR: 仲仲連tpass都能推?這東西能用個幾年前都不知道的政策 06/29 18:26
blargelp: 這個一兩周就賣掉了啦 06/29 18:29
blargelp: 這案的問題是自住不會買,我自己幾年後要賺價差,還是要 06/29 18:31
Notker: 包養真亂 06/29 18:31
blargelp: 買自住願意接的案子。但對置產收租的來說 這案夠香了 06/29 18:32
trestan: 這間很快會賣掉 06/29 18:32
ndilavril: 你先買 我OK 06/29 18:36
jessicaabc98: 說置產收租的快買,屋主大讓利 06/29 18:37
seratana: 說真的屋主超佛心的只開價40萬捷運10分內的全新房 還有 06/29 18:37
Peycere: 演藝圈一堆包養好嗎 06/29 18:37
seratana: 其他捷運站有這種價格的新房嗎 06/29 18:37
jessicaabc98: 這個仲仲,要不要直接私訊,說很香的哪位版友 06/29 18:38
jessicaabc98: 香爆囉,名義上是垃圾,但實際是香的 06/29 18:39
LMgogo: 這怎麼隔成三房的 06/29 18:43
blargelp: jessica 每次A7賣房文都在酸 結果都兩週內賣掉,這次反 06/29 18:44
vd422: 政治圈一堆包養好嗎 06/29 18:44
blargelp: 應特別大 看來穩了 06/29 18:44
Mithra: https://i.imgur.com/NvQLvlQ.jpeg 06/29 18:44
Mithra: 在待售物件裡面這件應該是開最低的 06/29 18:44
Mithra: 不過待售60件的社區好可怕 06/29 18:44
showard308: 室內不到16。3房 06/29 18:52
lutano: 有錢人一堆包養好嗎 06/29 18:52
showard308: 說香的快買。 不然屋主反悔就沒了 06/29 19:05
jessicaabc98: 再不賣要多殺多了,真的是破壞行情 06/29 19:06
lolpklol0975: 便宜 06/29 19:10
GGFACE: 這間絕對秒殺 上面不用再腦酸了 06/29 19:24
andy810306: (一千萬秒)秒殺,你看,是不是秒殺 06/29 19:27
muiwo: 學生妹被包養多嗎 06/29 19:27
VSshow: 地點錯誤!北市重點區域的話會秒殺,北市以外,滯銷 06/29 19:28
VSshow: 好啦,不會滯銷啦,總有人眼光獨特,會看好這間的! 06/29 19:29
tyler11342: 這坪數適合設計成兩房1.5衛 06/29 19:32
s5517821: 桃園加入台中大逃殺行列了嗎 06/29 19:34
convey1227: 室內15坪小2房都鳥籠房了 還三房… 什麼巫術 06/29 19:45
sunuzo: 有錢人為啥都想包養 06/29 19:45
seratana: 你可以改成兩房喔 單價真的很甜 06/29 19:49
gm3252: 吵什麼三房太擠自己改兩房不就好了 06/29 19:56
Feynman5566: 小坪數還隔一堆牆壁佔空間瘋了 06/29 19:58
dakkk: 佛 06/29 19:59
jessicaabc98: 仲仲要不要收集一下潛在購買名單,這串很多唉 06/29 20:00
UNIQC: 有錢人為啥都想包養 06/29 20:00
op520: 多多快買,買起來嗆魯空 06/29 20:00
zebirlin: 首購族早就被新青安FOMO上車了,放著等下次新青安2.0吧 06/29 20:06
pigpeachegg: 台北市捷運走路10分鐘還差不多,A7這啥鬼地方還要走路 06/29 20:11
pigpeachegg: 10分鐘每天日曬雨淋 06/29 20:11
buike: 還有新一代首購,免驚 06/29 20:27
dewaro: 亞洲最大包養網上線啦 06/29 20:27
jack0216: 比一堆離捷運1公里 當捷運宅的好多了 06/29 20:28
CK19: 捷運十分內的開這單價確實很甜 06/29 20:38
kusomanfcu: 槓精是不是都是文組? 06/29 21:00
GNZ48: 破防了破防了 06/29 21:03
jessicaabc98: 我幫忙一下,會買的請+1,讓仲介比較好統計私訊 06/29 21:20
Elfego: 我哥上包養網被我抓包.. 06/29 21:20
mm5566t: 室內16 3房 曠世巨作 坐等10坪3房 06/29 21:47
beergap: 被洗到A7還要住這種格局 06/29 21:49
elvishuang: 40仍然太高,格局太鳥 06/29 22:02
Alkaline865: 此案本身1255戶 基地鄰接北側建案1209戶 東側1115戶 06/29 22:05
Alkaline865: 南側778戶 西側228戶 高容積中心商業區都拿來蓋小 06/29 22:05
Nicodim: 有人包養過洋鬼子嗎 06/29 22:05
Alkaline865: 坪數住宅 當時開發弊案造成的很多問題都會逐步出現 06/29 22:05
andy810306: 話說這租的出去真的蠻狂的,到底是鬼島租屋市場破爛 06/29 22:15
andy810306: 到有剩,還是窮人時間這麼不值錢? 06/29 22:15
andy810306: 沒差幾毛錢租公司旁邊就好了吧?難道都在A7旁邊上班 06/29 22:16
fancydick501: 人道走廊 06/29 22:33
Foning: 有錢人為啥都想包養 06/29 22:33
seratana: 這單價跟總價真的是年輕人的人道走廊了 06/29 22:36
repast: 直通萌R波的走廊哈哈 06/29 22:52
pjc202: 15坪三房?客廳算一房嗎 06/29 22:58
GSWGOGO: 原來機捷四強已經崩潰了一角啊..但精明的投資者 不會在 06/29 23:04
GSWGOGO: 這時候出手的。再讓時間發酵吧。 06/29 23:04
AKNY: 有人被洋鬼子包養過嗎 06/29 23:04
y8809030: 室內15坪3房是洨小 扯 06/29 23:05
seratana: 可以改兩房喔 06/29 23:25
lucifero:    低總佛心價~ 06/29 23:35
backpacker18: 這格局沒改過? 06/29 23:37
backpacker18: 厲害了 06/29 23:37
mysister: 到底要多有錢才會想包養 06/29 23:37
leafshot: 神精病。住15坪 06/30 00:23
curtis16: 住宅的開40一坪,那棟事務所的該怎麼辦... 06/30 00:49
zxcv512: 說沒在擠捷運的有搭過捷運嗎 真的是笑了 06/30 01:38
Jaygo5566: 15坪隔3房是在哭? 06/30 02:31
airbone0407: 大便格局 現買現套 06/30 04:41
cir72: 包養SD = aSugarDating 06/30 04:41
AGODC: 先問問1250多房族貸不貸得到款能貸幾成?6成有機會嗎?新青 06/30 06:10
AGODC: 安去年都上車了,後面沒人了 06/30 06:10
Smilingface: 為什麼重劃區的棟距還這麼近... 06/30 07:56
DHPdotD: 便宜給推 06/30 08:06
guccienvy: 合理均價28-30萬 06/30 08:09
ATrain: 閨蜜上包養網還推薦我... 06/30 08:09
ga047993: 塊淘 06/30 08:36
forsaxon: 要崩了塊陶 06/30 08:38
kiversonx17: 15坪隔三房 真的屌 06/30 08:42
yao60301: 都被洗到A7還住這狗屎爛房 06/30 08:46
ichiro322: 室內16坪然後3房一衛…格局很爛耶 06/30 08:54
grado0802: 包養? 06/30 08:54
econaccount: 不過本案最後成交一定要守4字頭 如果不小心掉到3X萬 06/30 09:27
econaccount: A7其他的宿舍型建案就...XD 06/30 09:28
aoc7175: 15 三房? 06/30 09:29
king4647: 才15坪 這設計很差 06/30 09:37
CCOOGG: 如果5-600萬可以考慮收 樓下收 06/30 10:08
smilejin: 台全最的包養SD上線啦! 06/30 10:08
innuendo3324: 三房才1衛??!! 06/30 10:38
analogdesign: 室內15連2房都算小兩房,硬要三房,客廳還間接採光 06/30 10:45
blargelp: 這個最後一定3字樓啦 大亮泊住宅轉約 差不多就這價 06/30 11:00
kyorobert: 到底有多少人在眼紅A7呀.. 06/30 11:13
p1227426: 拉個屎都要排隊 06/30 12:33
qusekii: 現在包養網都這麼直接嗎 06/30 12:33
hwei9582905: 真那麼好,你房仲就會自己找人頭買了,哪會流出來賣 06/30 12:54
hwei9582905: ,呵呵 06/30 12:54
seratana: https://i.imgur.com/zYlYrCf.jpeg 06/30 13:19
seratana: 另外一個小房間可以當成書房 可以把它想成2+1的格局 06/30 13:19
paisen: 兩年前看過,記得連小坪數都會送你一個室內大柱子 06/30 13:21
Y949731: 歐美包養真的很平常嗎? 06/30 13:21
hwei9582905: 主臥的柱子吃那麼大空間,主臥都不主臥了 06/30 13:23
j32072: 15坪3房 這個厲害了 06/30 13:24
seratana: 雨遮不計坪數 可以把室外機放在雨遮空間 不佔據室內 06/30 13:28
clecer: 柱子跟床幾乎一樣寬了,這是3小 06/30 13:28
seratana: 空間 06/30 13:28
T730733: 男友上包養網 該放生嗎 06/30 13:28
seratana: 沒有一百分的房子 這個單價跟總價已經很不錯了 06/30 13:29
clecer: 書房還有一個奇怪的管線空間 06/30 13:29
seratana: 可以把他想成打通隔成兩房或是2+1房 06/30 13:29
clecer: 雨遮早就不計價了 06/30 13:30
dmOvOmb: 人道走廊是指投資客的嗎 06/30 13:33
FireStation: 是這個包養平台 06/30 13:33
what1026: 便宜 06/30 14:26
godwarder: 最小的當儲藏室或更衣室沒毛病阿 當2房一衛賣吧 06/30 15:32
seratana: https://i.imgur.com/UiAkmYx.jpeg 06/30 16:28
seratana: 格局我覺得還可以啦 就把最小的當成書房 06/30 16:28
childeviler2: 今天去問其他間,是事務所,那個仲介說屋主只要41萬 06/30 17:51
Thobel: 交男友跟包養有什麼差別 06/30 17:51
childeviler2: /坪,超便宜,交屋就45起跳... 06/30 17:51
seratana: 我這邊不是事務所是住宅還只開40萬,是不是超級佛心 06/30 18:08
CCOOGG: 佛心佛心 只差沒幫買的多多唸經超度辦法會 06/30 18:40
flora11883: 室內15三房,放一張單人床後還有空間嗎? 06/30 19:42
andy810306: 香港表示:還能放單人床?看來房價太低 06/30 20:14
Reji: 包養網到底在紅什麼? 06/30 20:14
x156w423: 欸 昨天沒注意到梁柱 06/30 21:14
x156w423: 這確實是瑕疵惹 06/30 21:14
x156w423: 主臥、+1房 吃滿大巨棒 06/30 21:14
x156w423: 床的示意圖 依建商提供比較合適 xD 06/30 21:14