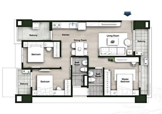
先上圖 https://i.imgur.com/4moIJ0O.jpg
室內20 陽台三個加起來4坪 花台附贈 客餐廳7+主臥5.5含衛浴+次臥2.8+3 請問各位前輩這樣子的格局會存在什麼問題 目前只想到玄關鞋櫃不知道如何安排 -- ※ 發信站: 批踢踢實業坊(ptt-web.org.tw), 來自: 106.105.219.112 (臺灣) ※ 文章網址: https://ptt-web.org.tw/home-sale/M.1696640733.A.734
yun0615ch: 室內20三房是三間單人房嗎? 10/07 09:21
seibu: 差不多 就玄關不太好搞 10/07 10:19
livability: 鞋櫃可以放在前陽台 10/07 10:51
livability: 陽台、花台,感覺可以種很多植物 10/07 10:53
bjqs0827: 沙發電視牆調換位置 玄關比較好隔 10/07 11:04
Y949731: 有沒有富二代要包養 10/07 11:04
rick6304: 很棒ㄟ 10/07 11:21
oxoxx: 只有玄關那塊最難處理 10/07 11:40
bustinjieber: 奇妙的格局,說不上好還是不好 10/07 13:41
Iandog: 我也是這樣想 不過不知道隔不隔的出來... 10/07 13:43
bustinjieber: 玄關找設計師吧,至少有前陽台 10/07 13:43
T730733: 身邊有朋友被包養 10/07 13:43
bustinjieber: 主臥跟大門的相對位置,把空間壓縮了, 10/07 13:46
bustinjieber: 但是主臥跟大門相對又很怪。 10/07 13:46
ulamong: 主臥做隱藏門開右側 空間應該比較好規劃 10/07 14:02
tskier: 可以考慮鞋櫃放陽臺,選防水材料 10/07 15:37
Iandog: 謝謝各位的建議 10/07 21:27
FireStation: 亞洲最大包養平台上線了 10/07 21:27