作者DeathStarDS1 (Death Star)
標題[請益] 一房大露台請益
時間2023-10-02 08:32:13
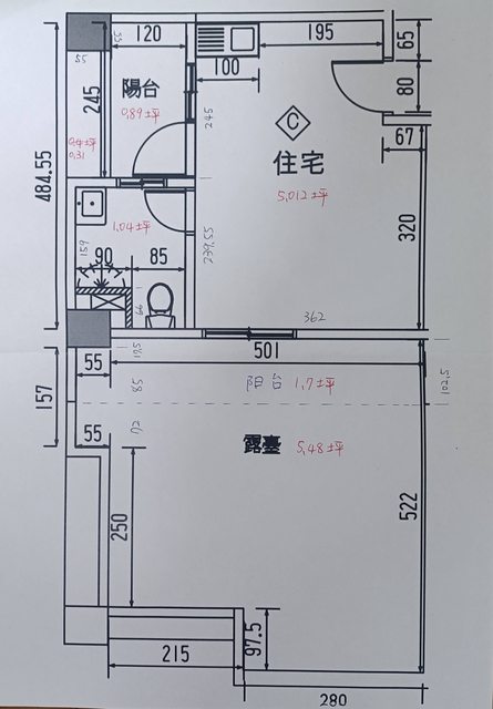
請教:
入口大門要不要上移到頂?
馬桶、蓮蓬頭位置對調?
廚房移到大陽台或小陽台?
其他大神可指導的地方
http://i.imgur.com/sbjxpS5.jpg
-----
Sent from JPTT on my OPPO CPH2065.
--
※ 發信站: 批踢踢實業坊(ptt-web.org.tw), 來自: 39.9.160.105 (臺灣)
※ 文章網址: https://ptt-web.org.tw/home-sale/M.1696206735.A.4F5
→ sdhpipt: 客變幾乎不可能動馬桶位置 除非你墊高自己拉糞管 或是下10/02 08:35
→ sdhpipt: 凹降板式的衛浴 類似中國大陸毛胚房那樣10/02 08:36
→ sdhpipt: 廚房移去露臺很常見 不過要看建商有沒有預留汙水排水道10/02 08:37
→ sdhpipt: 不然你排到雨水管 應該會常常塞住 哈哈 而且這是違建 XD10/02 08:38
推 Robben: 大門可以移?10/02 08:39
推 silberger: 亞洲最大包養平台上線了10/02 08:39 → benny1990615: 最好門可以亂改10/02 08:46
推 fickle85: 大門跟水區通常不能移吧10/02 08:54
→ Goog1e: 移大門也太天才了吧10/02 09:52