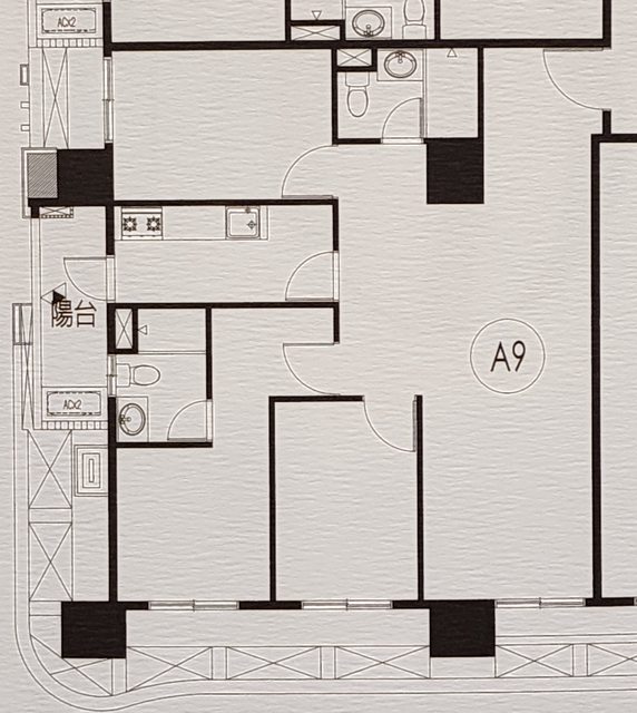
日前訂了預售屋,權狀約42坪,室內加陽台約27.8坪,年底可以客變,目前家庭人口2人 ,不會再增加,需要兩間房間,想問有沒有需要大改的地方,謝謝。玄關處吃了一根柱子 ,但影響不大。 下方主臥跟客房(書房)那邊,看起來怪怪的,不懂如何修改比較好?不太想改成2房, 想維持三房格局。 https://i.imgur.com/vrJ4iHC.jpg
https://i.imgur.com/jZjcYMa.jpg
-- ※ 發信站: 批踢踢實業坊(ptt-web.org.tw), 來自: 42.79.183.61 (臺灣) ※ 文章網址: https://ptt-web.org.tw/home-sale/M.1693733853.A.65B
hyuchi0202: 就硬塞一間當然怪啊 09/03 17:46
nuwai57: 衛浴位置改掉吧 09/03 17:49
nuwai57: 室內25坪還可以規劃這樣 09/03 17:51
nuwai57: 太多空間浪費了 09/03 17:51
GiantChicken: 廚房推出來 把櫥櫃弄進去 09/03 17:53
yovroc: 包養平台不意外 09/03 17:53
abdd123413: https://i.imgur.com/vVulGQo.jpg 09/03 17:54
abdd123413: 這樣如何 09/03 17:54
abdd123413: 反正只有兩人,一間暗房當儲藏室或當書房 09/03 17:55
abdd123413: 主臥也不會小的這麼誇張 09/03 17:55
flamer: 兩個人不會增加 乾脆改兩房就好 09/03 17:58
helgalie: 覺得包養網EY嗎 09/03 17:58
GiantChicken: 日後有換屋需求的話 大改要三思 09/03 18:01
nuwai57: 客房太大 09/03 18:02
bincar: https://i.imgur.com/W8vzkyM.jpg 09/03 18:28
bincar: 三房啦,這樣廚房有收納、主臥衣櫃置物櫃好用、客廳方正 09/03 18:28
bincar: 也可以再做頂天電視櫃或其他櫃體,只是要處理一下樑 09/03 18:28
OREOMZA: 包養網站葉配啦 09/03 18:28
jc10755: 推樓上改的格局,主臥那塊應該分給電器櫃 09/03 19:01
tonight0329: 直接給兩房 視野開闊又舒服 09/03 19:09
mp60707: 27.8含雨遮? 09/03 19:18
assunny1012: 可是三臥窗會被切一半 09/03 19:57
skyg: 你這室內坪數絕對可以三房,除非自住沒差,改成兩房到時很難 09/03 20:26
punjab: 記者收了包養網多少啦 09/03 20:26
skyg: 轉手 09/03 20:26
una283: 這種就是壓縮沙發電視到2.8米左右屬於小巧客廳 09/03 21:12
aaa931324: 可以隔成這樣也不簡單 09/03 22:27
yuffie: 好好27坪卡了柱子跟衛浴位置竟然隔成這麼悲哀QQ 09/03 22:29
dammbob: 主臥原衣櫃那看是要讓一半還是全部給廚房放電器櫃 09/03 22:43
sashare: 包養真亂 09/03 22:43
dammbob: 主臥乾脆就當睡覺用,隔壁直接拿來更衣間兼置物 09/03 22:44
dammbob: 這樣變動不大,當然可以的話小間的牆推一點給客廳更舒服 09/03 22:46
dammbob: 不過真的向上面說的2房或 2+1(書房)自住最爽 09/03 22:50
dammbob: 一定時間內要換屋的另當別論~ 09/03 22:50
cl3bp6: 這坪數又方正隔成這樣也夠爛 一般廚房應該在最左上 這樣 09/03 23:35
sijiex: 演藝圈一堆包養好嗎 09/03 23:35
cl3bp6: 就能弄出三房+二衛開窗了 09/03 23:35
themlb09: 不要改,這格局有先天缺陷,原始設計才最合理,習慣就好 09/04 08:11
tfshs0823: 無論如何都不要弄出暗房 09/04 11:31