大家好 先看圖 https://i.imgur.com/E4fJEW6.jpg
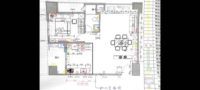
這原先是兩房兩衛,拆掉併入客餐廳 想請教: 1.玄關櫃位置應如何調整?做離門口太近怕壓迫、離太遠怕和客餐廳面積比例失衡,一般的 玄關比例為多少?我預計做到距離大門1.5公尺,會太近或太遠嗎? 2.玄關後面的餐桌寬及沙發長大約剩4公尺,這個空間會不會太侷促? 3.整體格局有沒有什麼需注意的? 感謝各位指教! -- ※ 發信站: 批踢踢實業坊(ptt-web.org.tw), 來自: 126.166.223.53 (日本) ※ 文章網址: https://ptt-web.org.tw/home-sale/M.1691591929.A.474
wcptt: 我會做門剛好可以打開的距離,可能再多個10-20公分,因為你 08/09 22:42
wcptt: 左邊夠大 08/09 22:42
wcptt: 應該就是你的150公分 08/09 22:43
kagaya: 我的話玄關櫃會靠牆放 空間大好利用 08/09 22:45
guanole: 剛開門 前面可以放個裝飾的空間就夠了 08/09 22:47
smilejin: 包養網到底在紅什麼? 08/09 22:47
guanole: 玄關櫃靠牆左邊放一排 08/09 22:47
bustinjieber: 玄關走道有1.2m就很夠了, 08/09 23:39
bustinjieber: 如果你不做頂天櫃,其實不會有壓迫感, 08/09 23:39
bustinjieber: 客餐廳寬度4m極限但可以, 08/09 23:39
bustinjieber: 沙發至少2m才夠舒服,長形餐桌最少0.6m, 08/09 23:39
qusekii: 有人被包養 08/09 23:39
bustinjieber: 餐桌跟鞋櫃/沙發之間走道最少各留0.6m, 08/09 23:39
bustinjieber: 所以餐廳大概1.8-2m 08/09 23:39
bustinjieber: 當然,看你沙發畫那麼小,如果可以接受的話 08/09 23:41
bustinjieber: 總共4m是夠的 08/09 23:41
bustinjieber: 我只是比較好奇,你退掉另一間衛浴, 08/09 23:45
Y949731: 求包養...管飽就好XD 08/09 23:45
bustinjieber: 那個空間要拿來幹嘛用的? 08/09 23:45
bustinjieber: 另外你因為拆掉一個房間, 08/09 23:47
bustinjieber: 整個客廳比例上很深,但是電視牆很窄, 08/09 23:47
bustinjieber: 一個65吋電視就吃了2/3了。 08/09 23:47
a99853853: 鞋櫃放左側牆面+1 08/10 01:00
T730733: 阿姨!我不想努力了(求包養) 08/10 01:00
inconspicous: 有一種設計是,餐桌放在沙發正後方,因為你的客廳四 08/10 01:19
inconspicous: 米是比較深的 08/10 01:19
inconspicous: 好處是玄關和客廳中間的空間可以釋放出來,比較不 08/10 01:20
inconspicous: 擁擠 08/10 01:20
hahabau: 感謝你們的意見,櫃子靠牆是好意見!回覆bus大,是的就 08/10 12:13
FireStation: 有沒有富二代要包養 08/10 12:13
hahabau: 是留一房一衛,本來是兩房兩衛。 08/10 12:13